【売買】相生No.2-48 ★NEW★
お問い合わせ頂いた順に交渉権を設けさせて頂いておりますのでご了承下さい。内覧につきましては随時、可能です。
外観
1階 駐車スペース
2階玄関
3階洋式トイレ
3階風呂
3階洗面所
3階ダイニングキッチン
3階リビング
3階洋室
2階洋室(1)
2階洋室(2)
庭
臨場感ある360度映像もご覧ください
(注意)iPhoneで閲覧されている方へ。
動画の上部「徳島県〇〇…」と書かれた文字をタップ→
YouTubeアプリから閲覧ください。(閲覧にはYouTubeアプリが必要です)
360°映像がお楽しみいただけます。
iPhoneのブラウザ上では360°映像を見ることができません。
| 空き屋番号 |
2-48 |
|---|---|
| 区分 | 売買 |
| 価格 | 相談により |
| 所在地 | 那賀町吉野 |
| 建物構造 |
3階鉄骨造 |
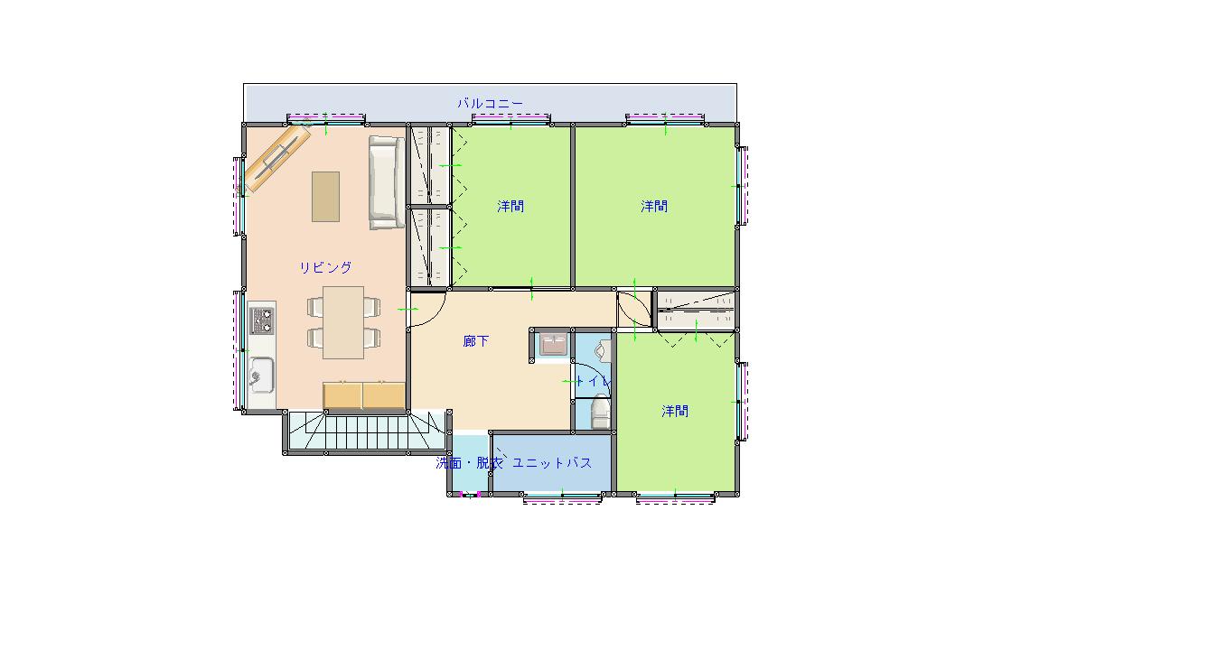
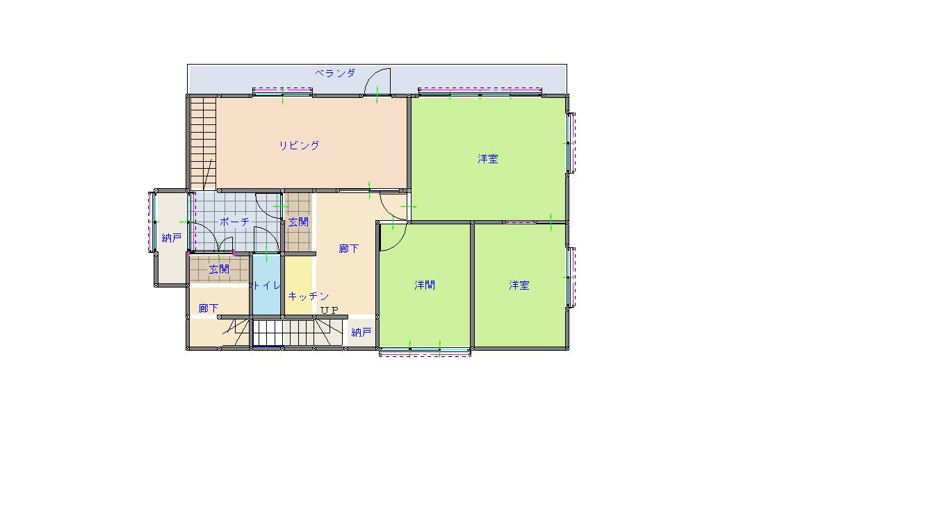
| 間取り |
|
| 敷地面積 | 宅地:131.97平方メートル |
| 建物面積 |
187.38平方メートル (2階・3階) |
| 建築時期 | 平成3年 |
| 補修の要否 | 補修なしで住める |
| 補修の費用負担 |
利用者 |
| 電気 | 引き込み済み(四国電力) |
| ガス |
プロパンガス |
| 水道 |
地域管理水道 |
| 排水 | 集落排水 |
| 風呂 | 灯油 |
| トイレ | 水洗(洋式・和式) |
| TV・インターネット |
ケーブルテレビ:那賀町ケーブルテレビへの契約が必要 |
| 駐車場 | 有り |
| 付帯物件 | なし |
| 周辺施設 |
最寄りの医療機関まで 車で約5分(2.8キロメートル) |
| 交通 |
徳島バス川口営業所 徒歩約2分 |
| 備考 |
相生地区の3階建て物件です。 |
| 問合せ先 | 那賀町移住交流支援センター(みらいデジタル課内)電話: 0884-62-1184 |
この記事に関するお問い合わせ先
みらいデジタル課
電話番号:0884-62-1184
メールアドレス:mira-digi@naka.i-tokushima.jp

更新日:2025年10月08日